Продажа готового бизнеса у метро Спартак, 1 541,1 м2
Цена:
462 330 000 ₽
Цена м²:
300 000 ₽
г Москва, Волоколамское шоссе, д 71 к 2
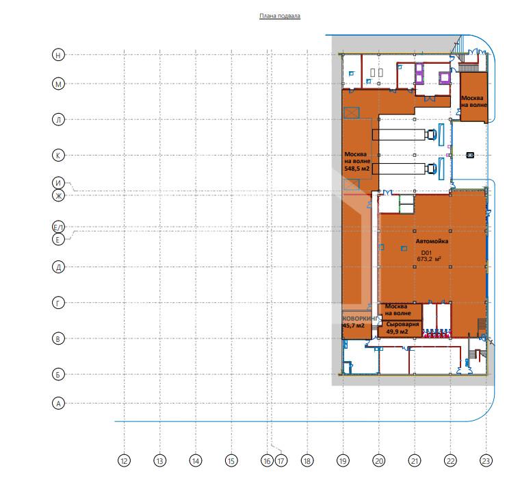
Помещение свободного назначения с арендатором в МФК "Митино Парк" на пересечении ул. Дубравная и Барышиха. Первая линия. 7 минут пешком от станции метро "Митино". 1.7 км до Пятницкого шоссе, 2.3 км до Пенягинского шоссе, 3.2 км до МКАД, 4.7 км до Волоколамского шоссе, 6.3 км до Ильинского шоссе. Плотный жилой массив. Сложившееся торговое окружение. Интенсивный автомобильный и пешеходный трафик. 1 этаж 3-этажного здания. Отдельный вход из торговой галереи. Открытая планировка. Витринное остекление. Зона разгрузки/погрузки. Возможность размещения вывески. Наземная парковка на 1 000 машиномест. Рядом остановка общественного транспорта.
Информация об арендаторе:
-арендатор: Спортмастер;
-доход: 2 000 000 ₽
