Аренда торговой площади в ЖК Прокшино, 91,7 м2
Аренда в месяц:
300 000 ₽
Цена м²/год:
39 252 ₽
г Москва, р-н Коммунарка, Прокшинский пр-кт, д 7
Предлагаем торговое помещение у метро "Бауманская".
Преимущества:
Пешая доступность до станции "Бауманская" (1 минута пешком).
Премиальная локация, развитая инфраструктура.
Отличная пешеходная и транспортная доступность.
Сложившееся торговое окружение ЦАО.
Высокий рекламный потенциал и места для размещения вывесок.
Отдельная входная группа с фасада в каждый блок.
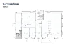
Планировка — свободная (сетка колонн).
Помещения подготовлены под чистовую отделку.
Тип здания - жилой дом.
Высота потолков: 3,25 м.
На планировке цифра 6.
