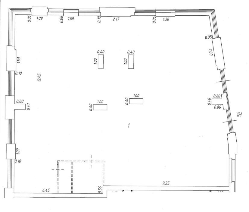
Аренда торговой площади в ЖК Прокшино, 91,7 м2
Аренда в месяц:
300 000 ₽
Цена м²/год:
39 252 ₽
г Москва, р-н Коммунарка, Прокшинский пр-кт, д 7
ПСН в ЖК "Символ"
Адрес: г Москва, улица Крузенштерна, 9
Технические характеристики
* Общая площадь: 188м²
* Первый этаж, 2 отдельных входа
* Выделенная мощность: 34кВт
* Высота потолков: 4,55м
Преимущества объекта
* Помещение на первой линии, на въезде в микрорайон
* Шаговая доступность от м. Авиамоторная
* Высокий пешеходный и автомобильный траффик
* 7700 квартир в радиусе 10ти минут ходьбы
* Рядом остановка общественного транспорта
* Сложившееся окружение: аптеки, магазины продуктов, пункты выдачи, мфц, управа района
