Продажа здания в г. Видное, 1 644,1 м2
Цена:
223 839 000 ₽
Цена м²:
136 146 ₽
Московская обл, г Видное, поселок Битца, мкр Южная Битца, ул Парковая, д 1 стр 19рнв
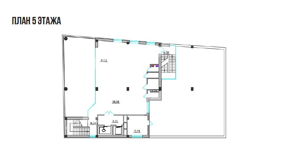
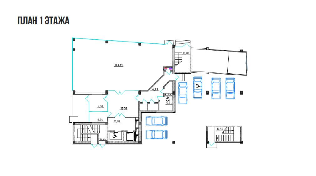
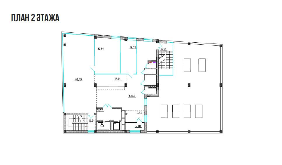
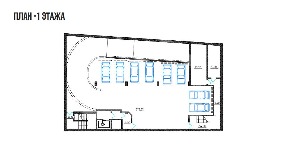
Многофунциональное отдельно стоящее здание класса «А» на Резервном проезде. 4 минуты пешком от станции метро Студенческая. Плотный жилой массив. Сложившееся торговое окружение. Высокий автомобильный и пешеходный трафик. 5 этажей. Площадь каждого этажа 300 кв.м. Два лифта. Открытая планировка без отделки. Открытые террасы. Современные системы кондиционирования и вентиляции. Главный вход со стороны Резервного проезда, второй вход и въезд в паркинг со стороны Киевской улицы. Панорамное остекление. Подземный паркинг на 14 машиномест. Оснащён подъёмниками для автомобилей. Площадь земельного участка: 700 кв. м. Электрическая мощность: 150 кВт. Высота полотков: 3,5 м.
