Продажа земельного участка в г. Истра, 150 сот
Цена:
330 000 000 ₽
Цена сот:
22 000 ₽
Московская обл, г Истра, деревня Покровское, ул Центральная, зд 39
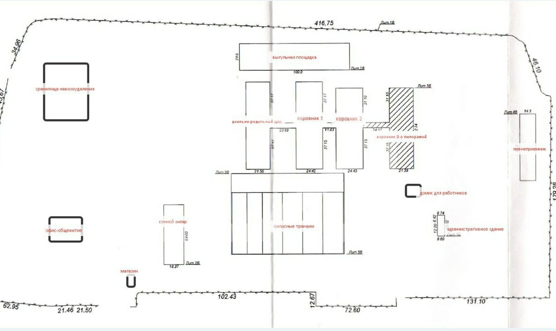
Предлагается земельный участок общей площадью 364.59 га с просторной сельско-хозяйственной фермой в д. Кутачи.
Преимущества:
Удобная траyспортная доступность: 10 км до Дмитровского шоссе и ж/д остановки, 68 км до ЦКАД.
Комплекс строений расположен на двух больший участках.
Проектная документация на реконструкцию и расширение фермы крупного скота до 1200 голов, получившая положительное заключение ГУ МО «Мособлэкспертизы» от 25.12.2008 г.
Проведена техническая инвентаризация зданий и сооружений.
По земельному участку проходит газопровод среднего давления.
Возможно строительство теплиц в районе прохождения газопровода.
Интернет.
На участке есть ПГС (в советские годы добывался песок для устройства рядом расположенной дороги).
Характеристики:
Общая площадь ЗУ: 364,59 Га.
Назначение ЗУ: для производства и реализации сельхозпродукции.
Категория земель: земли сельскохозяйственного назначения.
Водоснабжение: 2 скважины, 3 колодца.
Канализация: септик.
Навозоудаление: 4 хранилища.
Ливнеприемник: 858 кв. м.
Разгрузочная площадка: 1 752 кв. м.
Ограждение фермы: 3 030 кв. м.
Электрическая мощность: 250 кВт.
На объекте расположены строения общей площадью 8 185 кв. м, из них:
-коровники: 3 строения общей площадью 5 334 кв. м;
-доильно-родильный цех: 1 632 кв. м;
-сенной сарай: 974 кв. м;
-здание офиса с общежитием: 162 кв. м;
-продуктовый магазин: 34 кв. м (полностью оборудован холодильным и морозильным оборудованием, прилавком);
-домик для работников: 50 кв. м;
-6 силосных траншей: 5 700 кв. м;
-выгульная площадка: 2 400 кв. м;
-пилорама.
На территории 2 пруда с заведенной рыбой (амур, карп, толстолобик).
2 трактора "Беларус" с необходимым навесным оборудованием, 2021 года выпуска.
