Аренда офиса в БЦ Северное Сияние, 2 290 м2
Аренда в месяц:
11 175 200 ₽
Цена м²/год:
58 560 ₽
г Москва, ул Правды, д 26
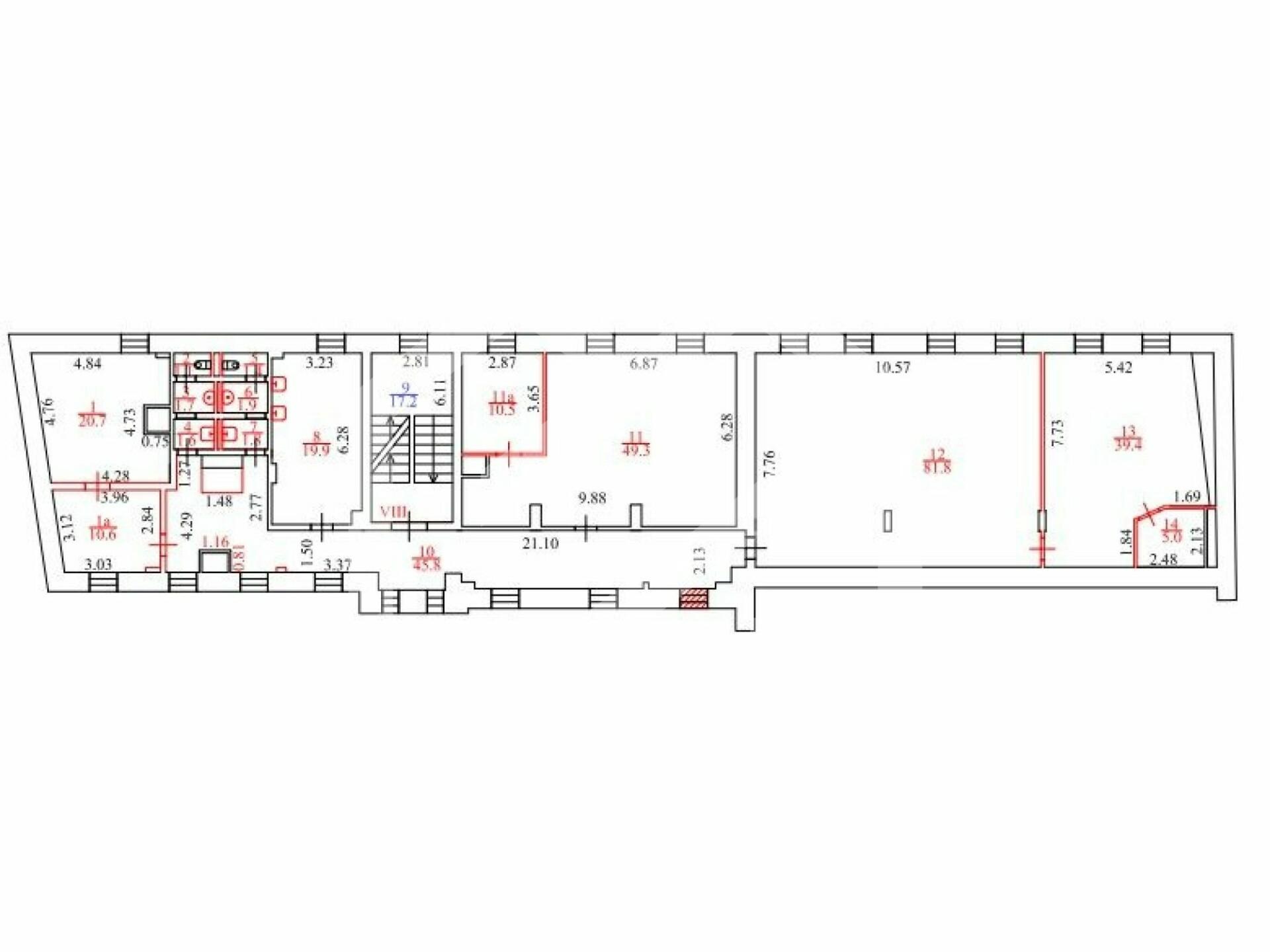
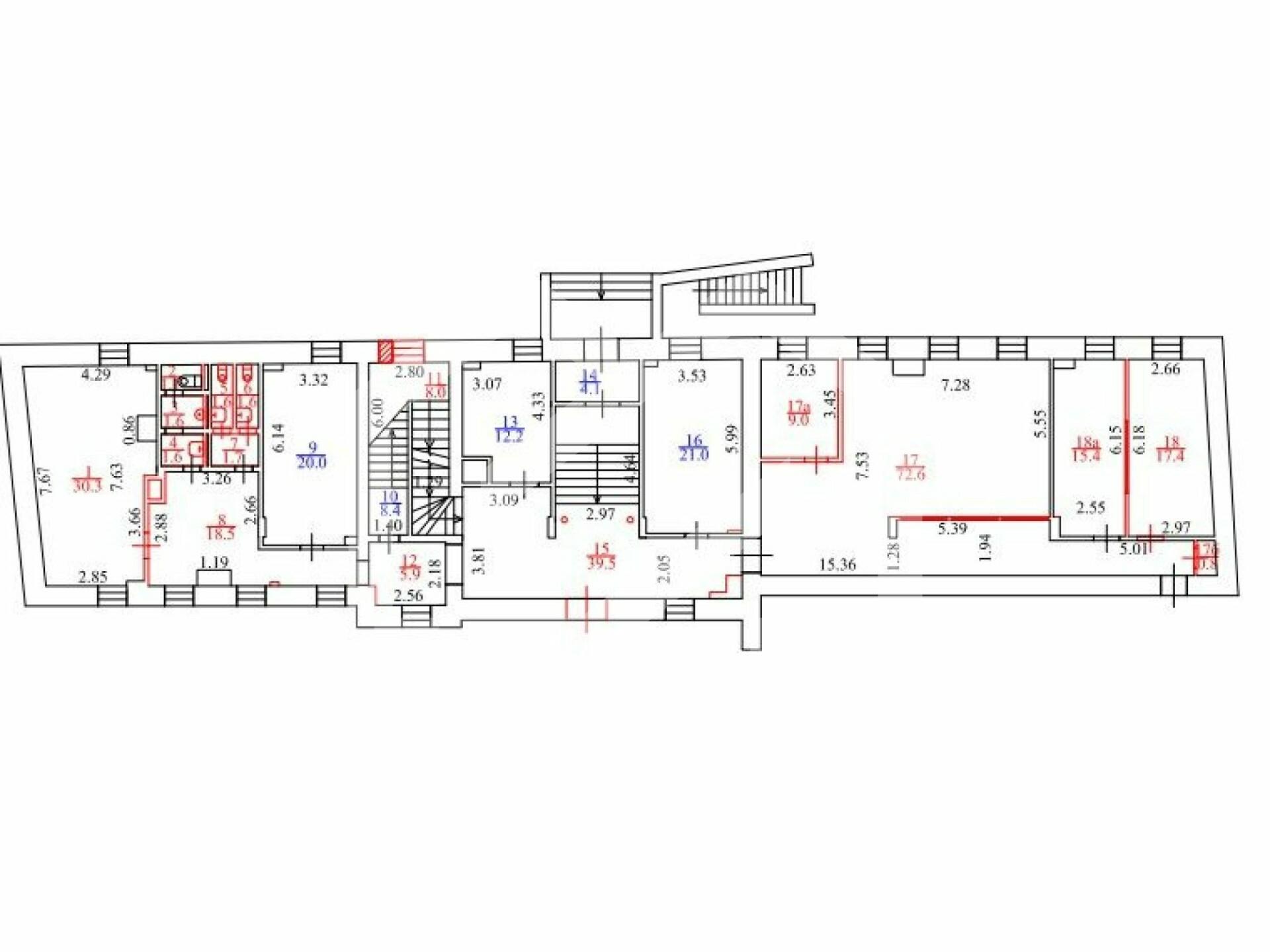
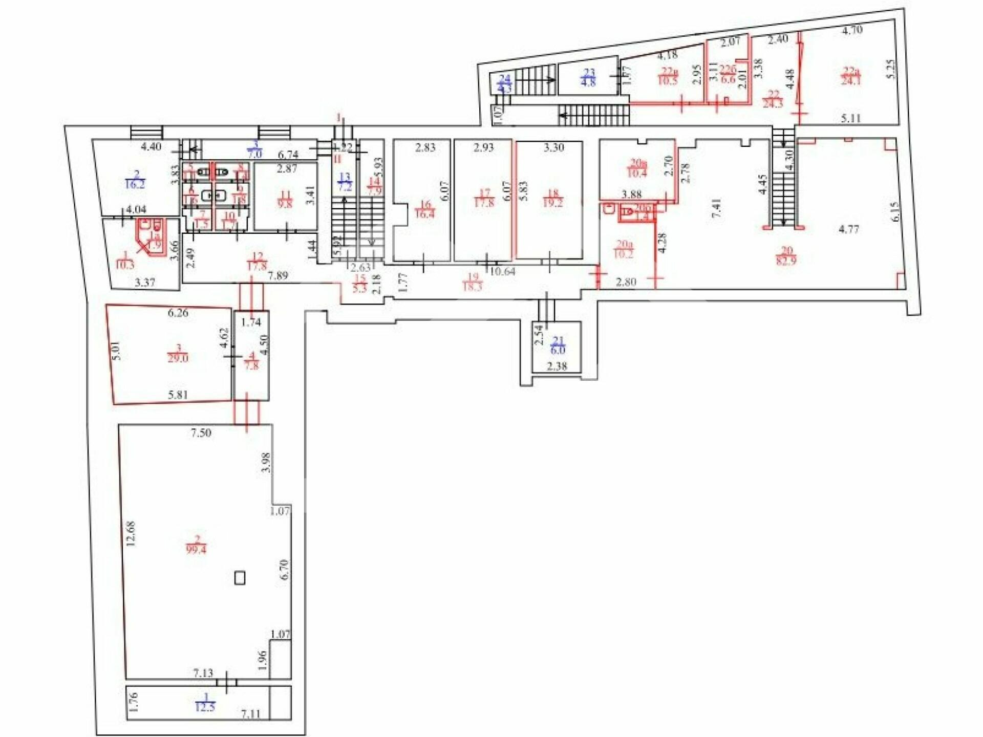
Особняк 3 минуты пешком до станции метро Цветной бульвар и 9 минут до станции метро Трубная. Полная реконструкция здания была произведена в начале 2004 года. В аренду предлагается 1 595 кв.м. Кабинетная планировка. Высота потолков: от 3.5 м до 4 м. Парковка на 20 мест. Шлагбаум. Электрическая мощность - 250кВт.
