Аренда офиса в БЦ Гранатный 24/4 стр 2, 490 м2
Аренда в месяц:
3 000 000 ₽
Цена м²/год:
73 464 ₽
г Москва, Гранатный пер, д 24/4 стр 2
Бизнес-центр «Орбита-2» расположен в Северо-Западном округе Москвы, в районе Строгино. Транспортная доступность: рядом находятся станции метро «Строгино» и «Щукинская», а также остановки общественного транспорта. Комплекс имеет развитую инфраструктуру: различные предприятия питания, нотариальную контору, страховое агентство, аптеку, парикмахерскую и салоны красоты.
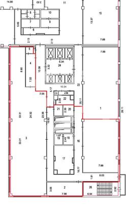
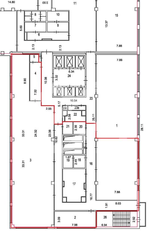
Офис расположен на 2 этаже. Общая площадь: 479.4 кв м. Высота потолков 2,7м. Смешенная планировка: Офисный блок с отдельным входом. Внутри блока есть возможность установить ресепшн. Имеются кабинеты, кабинеты open space, переговорные, комнаты под архивы, комната приёма пищи, санузлы, серверная, гардероб, кладовая.
