Продажа производственного помещения на улице Береговой, 11 473,4 м2
Цена:
3 500 000 000 ₽
Цена м²:
305 053 ₽
г Москва, Береговой пр-д, д 4 к 3 стр 5
Кадастровый номер: 77:05:007004:1044
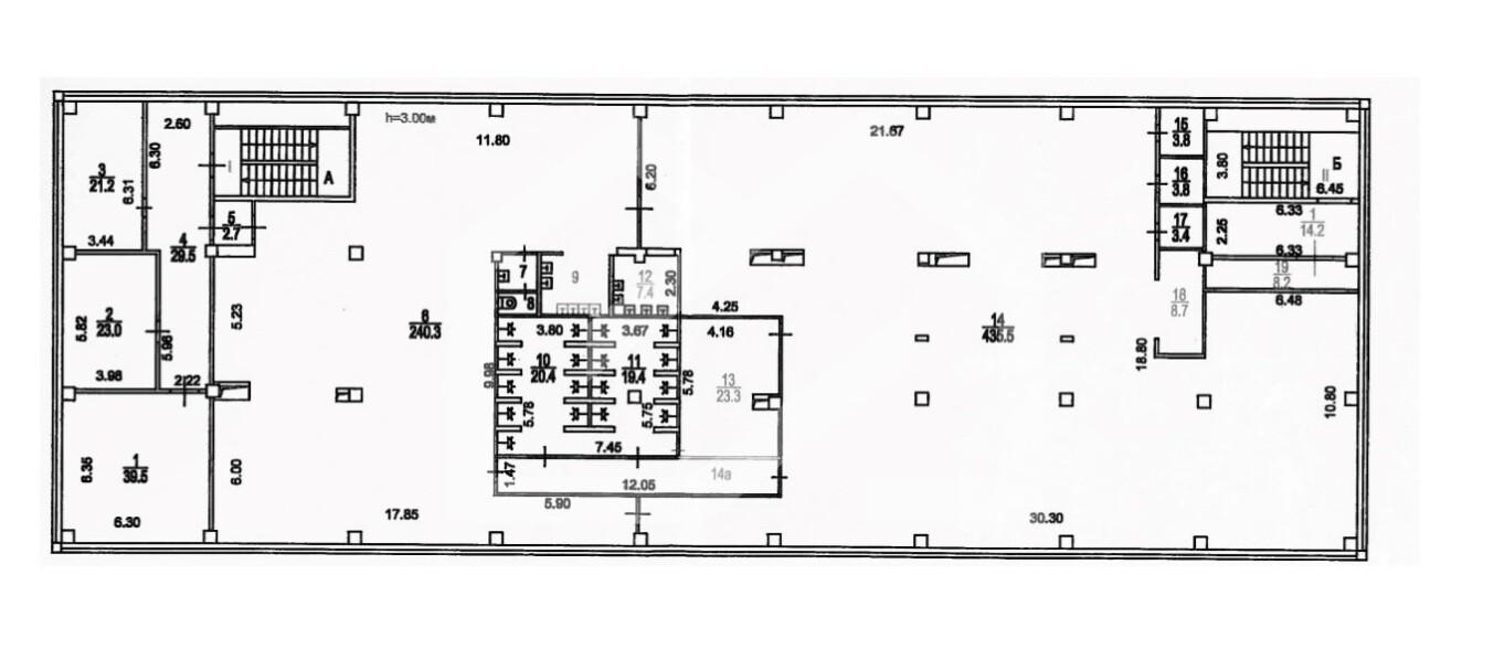
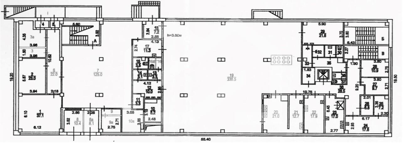
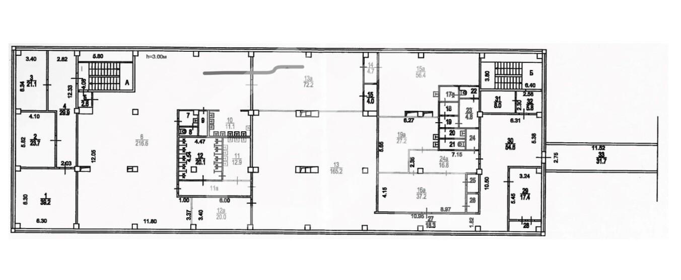
Предлагается на продажу производственно - складская база общей площадью 14 080 кв. м. в Москве.
Преимущества:
Превосходная локация и транспортная доступность: расположение в черте Москвы, внутри МКАД, в промышленной части ЮАО.
Расстояние от МКАД - 4 км, от ТТК - 10 км.
Вблизи крупнейшие транспортные магистрали города: ЮВХ, МСД, Варшавского и Каширского шоссе.
Объект НЕ входит в зону КРТ.
Удобный земельный участок, примыкающий к существующей УДС.
Адрес объекта и близлежащие улицы входят в зону грузового каркаса Москвы (по улицам грузового каркаса допустимо движение грузовых автомобилей без пропусков).
Большое количество въездных ворот в здании.
Асфальтрованная парковка и беспрепятственный проезд для фур.
Центральные системы отопления ,водоснабжения и канализации.
Огороженная территория.
Охрана, видеонаблюдение.
Объект отлично подходит под размещение образовательного учреждения или офиса для сотрудников.
Возможность деления на блоки любого формата под разных арендаторов.
Отдельный вход со стороны улицы, а также отдельный внутренний вход со стороны прилегающей территории
Здания в собственности.
З/У в долгосрочной аренде.
Технические характеристики:
Объект состоит из двух зданий:
1. Индустриально-складское здание.
Общая площадь здания: 9 140 кв.м.
Год постройки: 1982.
Шаг колонн: 6 х 18 м.
Высота потолков: до 11,5 м.
Мощность электроэнергии: 500 кВт., II-категория надежности.
Площадь земельного участка: 2 Га.
ЗУ в аренде до 30. 11. 2029 г.
2. Административное здание.
Общая площадь 4 939,8 кв. м.,
Количество этажей: 4 + тех. подвал.
Год постройки: 1982.
Высота потолков: 3,2 м.
Электрическая мощность: 250 кВт, II-категория надежности.
Количество парковочных мест: 30 м/м.
Общая площадь З/У: 0,3177 Га.
ВРИ:
6.9. Склад.
6.3. Легкая промышленность.
6.4. Пищевая промышленность.
6.5 Нефте-химическая промышленность.
6.6 Строительная промышленность.
6.12 Научно-производственная деятельность.
