Продажа производственного помещения на улице Береговой, 11 473,4 м2
Цена:
3 500 000 000 ₽
Цена м²:
305 053 ₽
г Москва, Береговой пр-д, д 4 к 3 стр 5
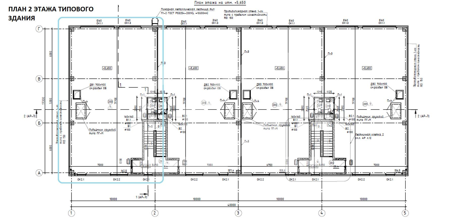
Предлагается блок общей площадью 355 кв. м. в современном проекте формата light industrial в г. Королёве.
Преимущества:
Расположен в центральной части города Королёва, рядом с жилыми кварталами и ТЦ Globus.
Заезд с Калининградской улицы.
Развитая инфраструктура, рядом остановки общественного транспорта.
Удобная логистика для любых видов транспорта, 8 км от МКАД.
Огороженная охраняемая территория, пропускная система, видеонаблюдение, круглосуточный доступ.
Профессиональная управляющая компания.
Склад + шоурум + производство в одном пространстве, собственная наземная парковка на территории комплекса.
Полы с антипылевым покрытием.
Грузовой подъемник на 2 этаж.
Автоматические подъемно-секционные ворота на уровне "0" (3*4,3 метра).
Центральные городские системы водоснабжения и водоотведения.
Отопление от собственной газовой котельной.
Ввод в эксплуатацию - апрель 2026 года.
Возможна рассрочка платежа.
Технические характеристики:
Общая площадь блока - 355 кв. м, из которых:
на 1 этаже - 177,5 кв. м, на 2 этаже - 177,5 кв. м.
Рабочая высота потолка: 1 этаж - 5.6 м, 2 этаж - 5,4 метра.
Нагрузка на пол: 5 т/кв. м на 1 этаже и 1 т/кв. м. на 2 этаже.
Выделенная электрическая мощность: 50 ватт на 1 кв. м.
