Продажа производственного помещения на улице Береговой, 11 473,4 м2
Цена:
3 500 000 000 ₽
Цена м²:
305 053 ₽
г Москва, Береговой пр-д, д 4 к 3 стр 5
Помещение общей площадью 2067 кв. м., в складском комплексе категории "А" формата Light Industrial во Внуково.
Преимущества:
15 км (10 мин) от МКАД по Киевскому шоссе в новом промышленном парке "Соколово".
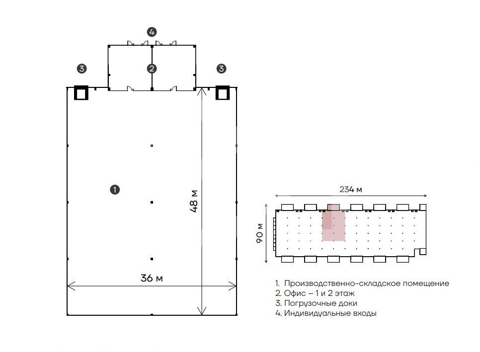
Комплекс общей площадью 317 тыс.м² находится в Новой Москве на Киевском шоссе в направлении Москвы, напротив аэропорта Внуково.
25 минут на общественном транспорте до м. "Саларьево" или "Внуково".
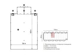
1 этаж склад + офисный блок
Офисные помещения с отделкой входят в стоимость и расположены на 2 уровнях, что позволяет разделить функции офиса и торгового зала/шоурума.
Парковка на территории комплекса для разных типов а/м.
Закрытая территория.
Перед входом в парк остановка автобуса "Соколово".
Технические характеристики в корпусе А:
Площадь блока: 2067 кв. м.
Промышленно-складская площадь: 1379 м2.
Офисно-торговая площадь: 328 м2.
Мощность - 60 кВт, возможно любое увеличение.
Шаг колонн: 12х18 м.
Высота потолка: 8 м.
Нагрузка на пол: 5т/м².
Парковка - 6 мест для л/а, 4 груз. места для фур
Зона погрузки/разгрузки — погрузочные доки 2шт. на уровне 1,2 м от земли
По запросу возможна установка въездной рампы или пандуса.
Пол: бетонный с антипылевым покрытием.
Вентиляция: офисные помещения-вытяжка; складские помещения-естественная.
Система видеонаблюдения.
Плоская кровля с внутренним водостоком.
Возможность установления кран-балки.
Ввод в эксплуатацию: 4 квартал 2026 года.
