Аренда здания у метро Октябрьское поле, 5 176,2 м2
Аренда в месяц:
10 282 000 ₽
Цена м²/год:
23 832 ₽
г Москва, ул Маршала Рыбалко, д 2
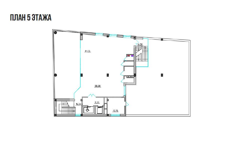
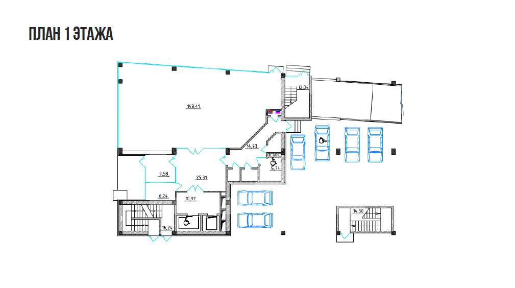
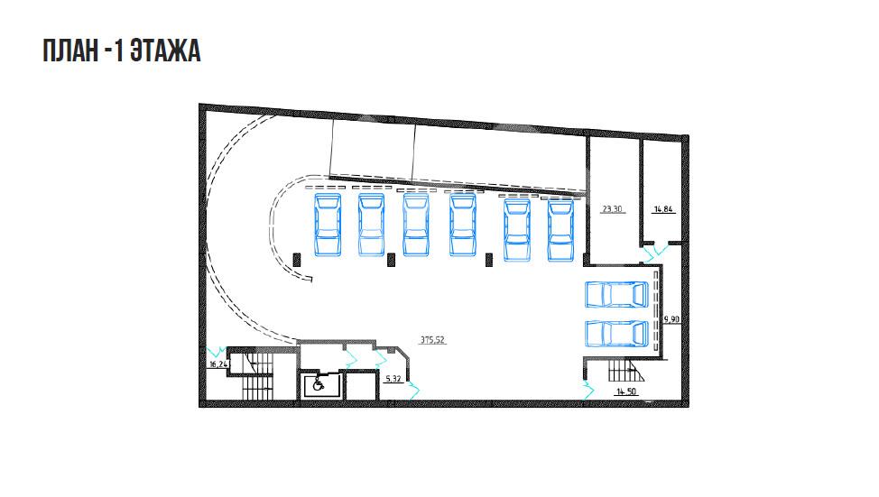
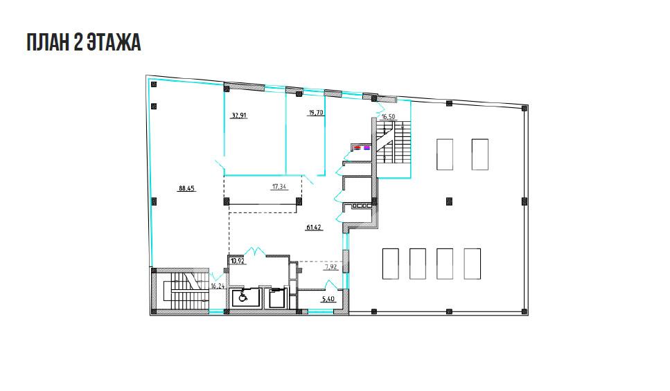
Многофунциональное отдельно стоящее здание класса «А» на Резервном проезде. 4 минуты пешком от станции метро Студенческая. Плотный жилой массив. Сложившееся торговое окружение. Высокий автомобильный и пешеходный трафик. 5 этажей. Площадь каждого этажа 300 кв.м. Два лифта. Открытая планировка без отделки. Открытые террасы. Современные системы кондиционирования и вентиляции. Главный вход со стороны Резервного проезда, второй вход и въезд в паркинг со стороны Киевской улицы. Панорамное остекление. Подземный паркинг на 14 машиномест. Оснащён подъёмниками для автомобилей. Площадь земельного участка: 700 кв. м. Электрическая мощность: 150 кВт. Высота полотков: 3,5 м.
