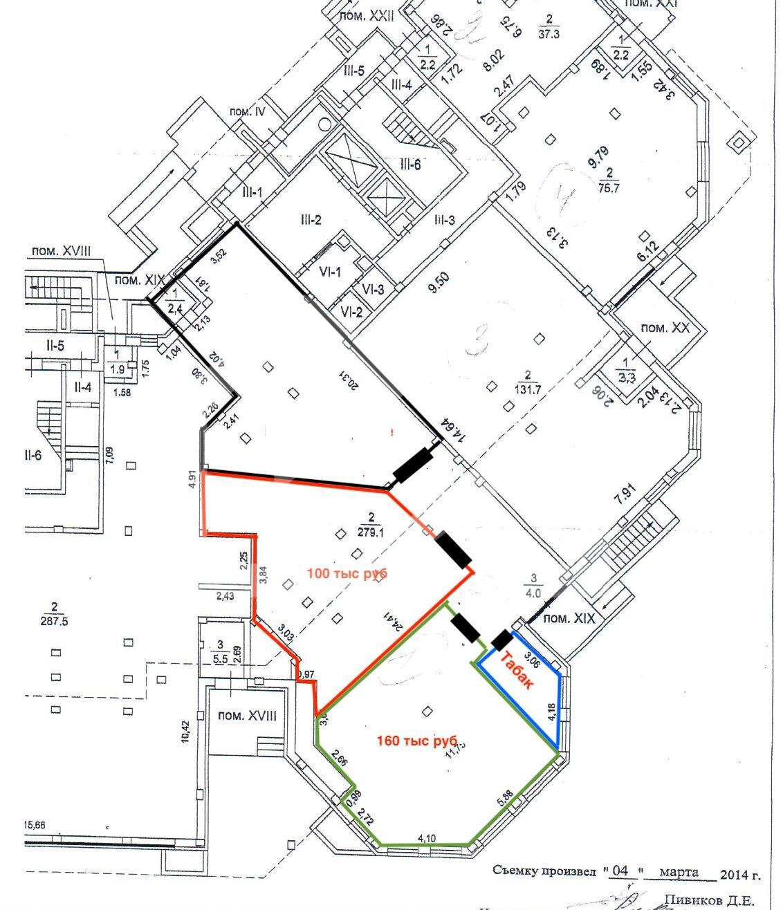
Аренда торговой площади в ЖК Прокшино, 91,7 м2
Аренда в месяц:
300 000 ₽
Цена м²/год:
39 252 ₽
г Москва, р-н Коммунарка, Прокшинский пр-кт, д 7
Сдаётся помещение свободного назначения формата Street Retail!
- Этаж: 1-й этаж, 1-я линия домов
- Вход: общий с фасада
- Планировка: открытая
- Высота потолков: 3 м
- Электричество: 20 кВт
- Парковка: перед зданием
- Реклама: место для вывески
- Трафик: активный пешеходный и автомобильный
- Инфраструктура: рядом Ермолино, Красное и Белое, Пятерочка, Дикси, аптеки
- Назначение: свободное
- Аренда: 120 000 руб./мес.
- Коммунальные платежи: отдельно
- Срок договора: обсуждается
- Налогообложение: УСН
