Аренда офиса в БЦ Северное Сияние, 2 290 м2
Аренда в месяц:
11 175 200 ₽
Цена м²/год:
58 560 ₽
г Москва, ул Правды, д 26
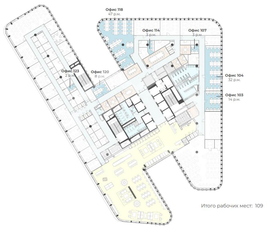
Коворкинг в строении А бизнес-центра "Белая Площадь". 47 рабочих мест. Развитая инфраструктура, отличная транспортная доступность. Доступ арендаторов 24/7. Современная инженерия. Профессиональная управляющая компания. Высота потолка – 3,6 м. 3 лифтовых лобби. 18 основных высокоскоростных лифтов марки KONE. 2 лифта паркинга. 6 грузопассажирский лифт. Система видеонаблюдения за доступом на всех входах в зданиях и на парковку. Спринклерная система пожаротушения, лестничные пролёты оборудованы устройствами подпора воздуха с системами дымоудаления. Центральная 4-х трубная система кондиционирования и вентиляции. Два независимых источника электроснабжения. Компьютеризированная система управления функционированием зданием.
