Продажа производственного помещения на улице Береговой, 11 473,4 м2
Цена:
3 500 000 000 ₽
Цена м²:
305 053 ₽
г Москва, Береговой пр-д, д 4 к 3 стр 5
Предлагается производственно-складское помещение формата Лайт Индастриал в цифровом индустриальном парке ЛЕНИНСКИЙ.
Преимущества:
1 км от трассы М-4 и рядом с гор. Видное. 5 мин. на автобусе до пл. Расторгуево.
10 км от МКАД, в 30 км от ЦКАД.
Цифровой промышленный парк общей площадью 85000 м2.
Парк прошел сертификацию ассоциации по уровню готовности зданий к облачным подключениям и соответствию стандартам цифровой экономики.
Парки Индастриал Сити подключены к мощным центрам обработки данных, имеют высокий уровень надежности и безопасности.
Готовая инженерная инфраструктура.
Оборудованные парковочные места.
Доступ к производственно-складским помещениям 24/7.
Комплексная эксплуатация объектов.
Охраняемая территория.
Въезд на территорию бесплатный (цена входит в охрану).
Земельный участок под помещением выделяется и передается в собственность.
Технические характеристики:
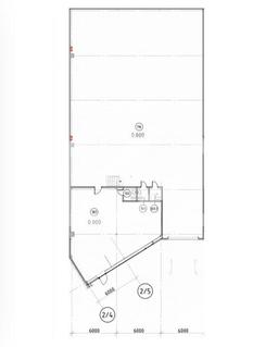
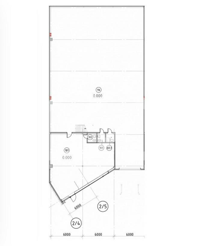
Площадь блока: 1 426.52 кв. м.
Площадь производственная: 928 кв. м.
Площадь мезонина: 254 кв. м
Площадь офиса: 242 кв. м.
Шаг колонн: 18х24 м.
Высота потолка: 8 м - рабочая, до низа металлоконструкций, 10 м - до потолка.
Ворота - доковые 1 шт.
Нагрузка на пол: 5 т/м².
Мощность - 50 кВт, возможно любое увеличение.
Количество грузовых парковочных мест - 2, легковых - 6.
Сдача - 4 кв. 2026 г.
Возможно приобретение в ипотеку.
Так как корректный адрес отсутствует на Яндекс.Картах, введен ближайший.
